产品介绍
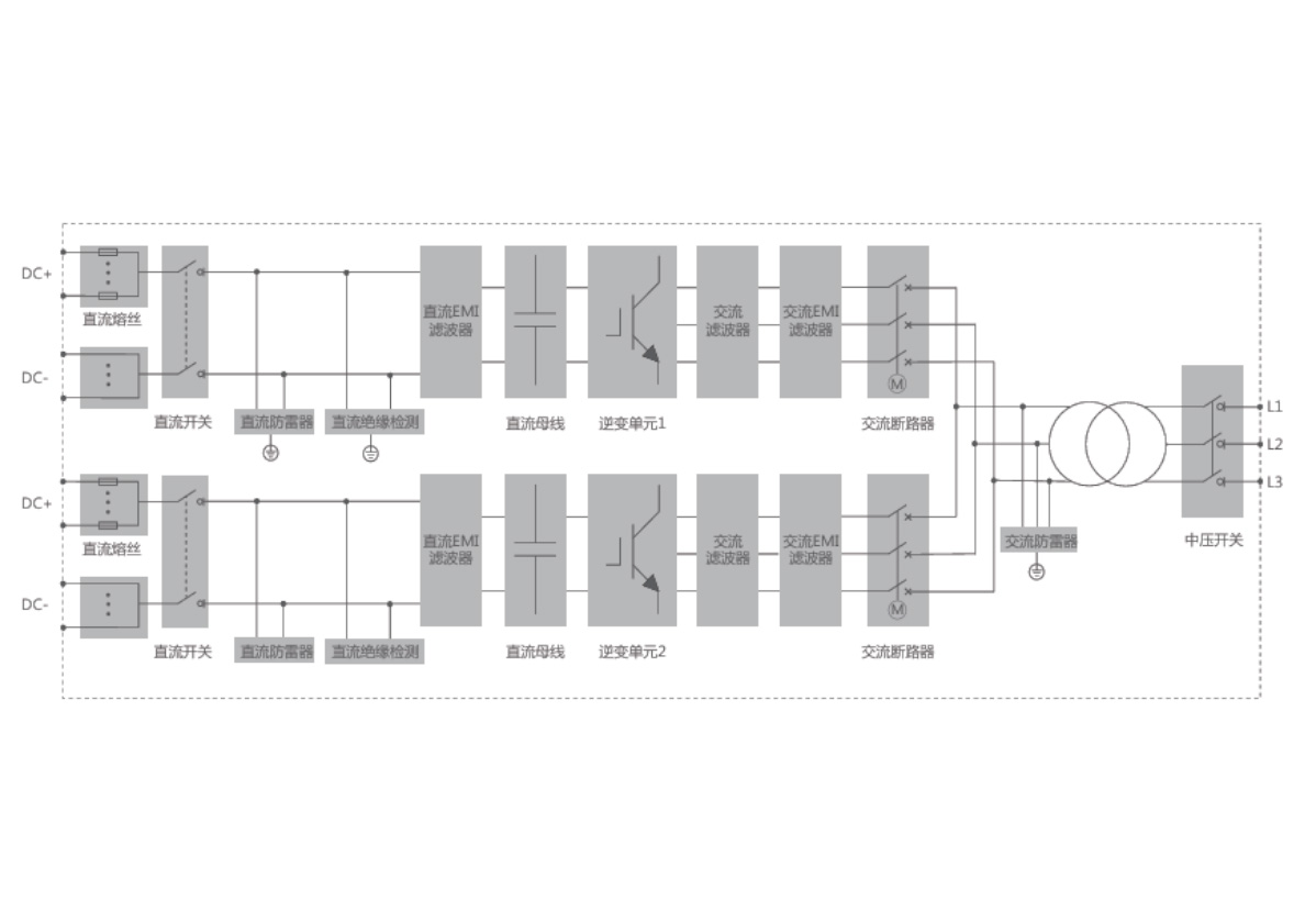
SG3125HV-MV 这是一款专为大型地面电站设计的超大功率组串式逆变器,其名称揭示了关键特性:
• SG: 阳光电源品牌(Sungrow)
• 3125: 额定输出功率为 3125 kW(3.125 MW)
• HV: 高直流输入电压(High Voltage)
• MV: 集成中压交流输出(Medium Voltage)
简单来说,SG3125HV-MV是一款集成了中压变压器的超大功率组串式逆变器。

一、核心特点与优势
1. “逆”“变”一体,系统集成
◦ 传统方案:逆变器 + 外围升压变压器 → 并入电网。
◦ 本机方案:将逆变器和中压变压器集成于一体,直接输出中压(如3150V、33kV等)。
◦ 优势:省去外部变压器,显著降低系统成本、减少占地面积、简化安装和维护。
2. 超高功率,极致降本
◦ 单机3.125MW的功率极大提升了功率密度。
◦ 在百兆瓦级电站中,可减少设备数量,简化系统结构,有效摊薄每瓦投资与度电成本(LCOE)。
3. 智能组串管理
◦ 支持多路MPPT(最大功率点跟踪)输入,能对不同的组串进行独立优化。
◦ 优势:减少因阴影遮挡、灰尘、组件差异导致的失配损失,最大化发电收益,尤其适配双面组件和跟踪支架。
4. 高电压设计
◦ 直流侧支持1500V超高电压输入,完美匹配当前主流大功率光伏组件。
◦ 优势:降低直流线缆上的电流,减少线损,节省电缆投资。
5. 强大的电网支持与安全性
◦ 具备良好的电网适应性与调度能力,支持高低电压穿越、有功无功调节等,满足严格电网规范。
◦ 集成AFCI(电弧故障关闭)、智能IV曲线诊断、反PID等主动安全功能,保障电站安全稳定运行。
二、典型技术规格参数
一)、 基本参数
二)、 直流输入 (DC Input)
| 参数项目 | 参数值 |
|---|
| 最大输入电压 | 1500 V |
| 最小输入电压 / 启动电压 | 875 V / 915 V |
| 满载MPPT电压范围 | 875 ~ 1300 V |
| MPPT 数量 | 2 |
| 最大输入路数 | 16 (18 / 22 / 24 可选) |
| 最大输入电流 | 3997 A |
| 最大直流短路电流 | 5000 A |
三)、 交流输出 (AC Output)
| 参数项目 | 参数值 |
|---|
| 最大输出功率 / 视在功率 | 3437 kW / 3437 kVA |
| 额定电网电压 | 20 kV ~ 35 kV |
| 额定电网频率 | 50 Hz |
| 电网频率范围 | 45 ~ 55 Hz |
| 总电流波形畸变率 (THD) | < 3% (额定功率时) |
| 输出直流分量 | < 0.5% 额定输出电流 |
| 额定功率因数 | > 0.99 |
| 功率因数可调范围 | 0.8 (超前) ~ 0.8 (滞后) |
| 馈电相数 / 输出端相数 | 3 / 3 |
四)、 效率与保护 (Efficiency & Protection)
| 保护功能 | 支持情况 |
|---|
| 交/直流过压保护 | 具备 |
| 交/直流过流保护 | 具备 |
| 交/直防雷保护 | 具备 |
| 电网监测/接地故障保护 | 具备 |
| 绝缘监测 | 具备 |
| 过热保护 | 具备 |
五)、 其他功能与通用参数 (Features & General Parameters)
三、应用场景
大型地面光伏电站:沙漠、戈壁、丘陵等大规模集中式发电项目的最佳选择。
“光伏+”综合应用基地:如光伏治沙、光伏+农业、光伏+渔业等一体化项目。
工商业屋顶(较少):适用于面积巨大的工业园区或物流仓库屋顶。